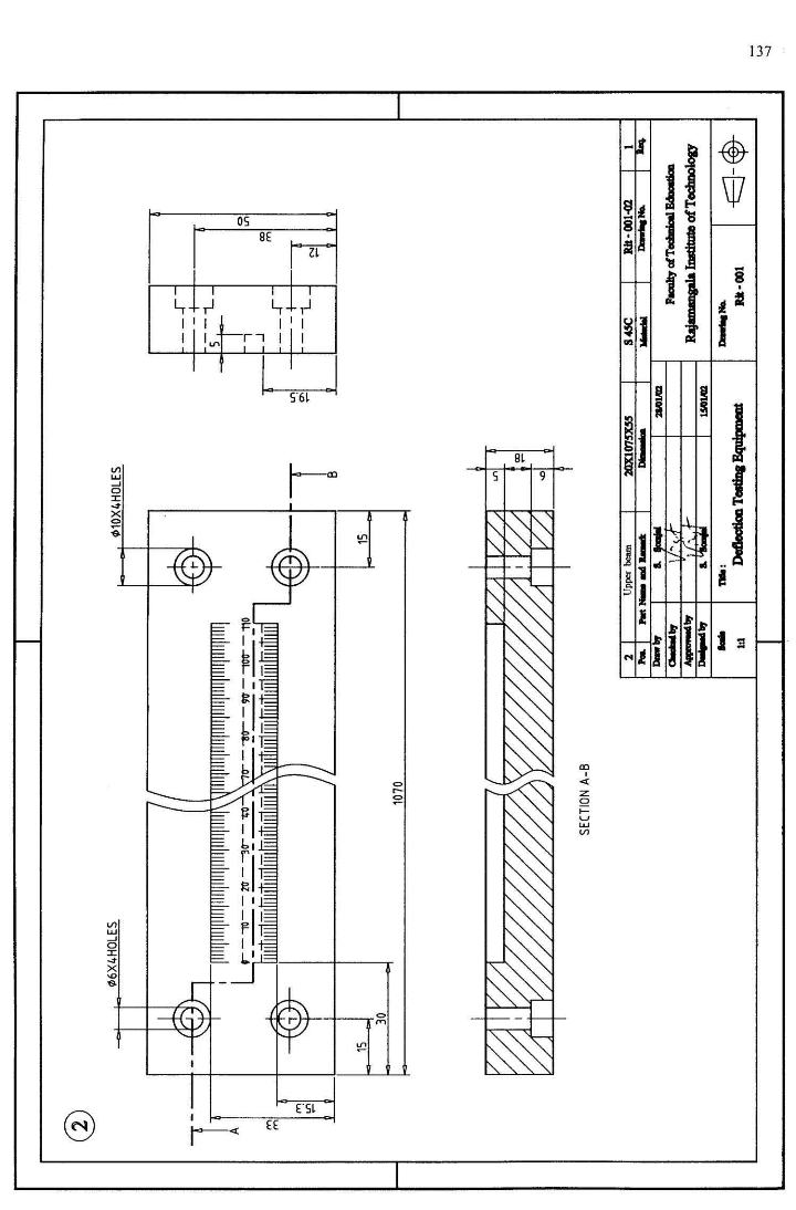
Page 317 - เรื่อง อุปกรณ์ทดสอบการโก่งของคาน
Basic HTML Version
View Full Version
Table of Contents
Page 316
Page 318
137
http://www.carit.rmutk.ac.th/