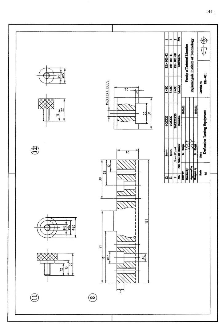
Page 331 - เรื่อง อุปกรณ์ทดสอบการโก่งของคาน
Basic HTML Version
View Full Version
Table of Contents
Page 330
Page 332
144 '
I
©
I
(z
I
~~l ~
~ ~
~
r-~
:--'-1
!
~
;::
~~'\
~r-= ~~~
·t-=l0:~
~~
http://www.carit.rmutk.ac.th/